Acityタワーズウエスト・タワー棟

1,895.8万円

広島県広島市安佐南区大塚西3丁目2-3

広島高速交通アストラムライン「大塚」駅徒歩13分

広島高速交通アストラムライン「広域公園前」駅徒歩21分

広島電鉄「Aシティ中央」バス停

価格
1,895.8万円
間取り
2LDK
向き
-
所在地
広島県広島市安佐南区大塚西3丁目2-3
交通

広島高速交通アストラムライン大塚」駅 徒歩13分

広島高速交通アストラムライン広域公園前」駅 徒歩21分

広島電鉄「Aシティ中央」バス停下車 徒歩2分

専有面積
88.73㎡
築年月
1998年3月(築27年)

物件の特徴

  • カウンターキッチン

  • 独立洗面台

  • 浴室乾燥機

  • オートロック

  • エレベーター

セールスポイント

大切なペットと一緒に暮らせる☆広々リビング◎リノベーション物件♪【システムキッチン、ユニットバス、洗面化粧台、トイレ、全室天井・壁クロス張替、フローリング張替等】アストラムライン大塚駅歩13分!周辺の買い物施設も充実☆

基本情報

管理費
11,190円
修繕積立金
20,600円
修繕積立基金
-
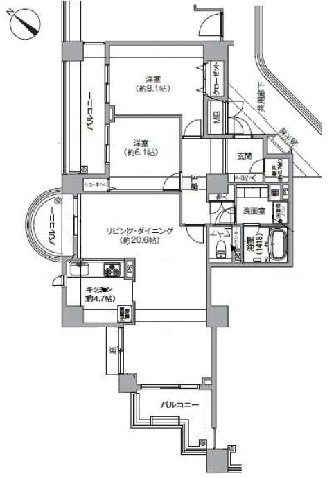
間取り / 詳細
2LDK
LDK 25.3帖/洋室 8.1帖/洋室 6.1帖
向き
-
専有面積
88.73㎡
バルコニー面積
21.62㎡
その他面積
-
-
-
所在階 / 階建て
12階 / 31階建
建物構造
鉄骨鉄筋コンクリート
築年月
1998年3月(築27年)
種別
中古マンション
駐車場 /
月額料金
空有 5,000円 5,000~15,000円/月
土地権利
所有権
土地
(敷金 / 保証金)
- / -
国土法届出要否
不要
接道状況
-
用途地域
-
地勢
-
都市計画
-
現況
空家
引渡し
即時
取引態様
一般媒介
棟総戸数
232戸
管理形態
管理会社に全部委託
管理会社 /
管理組合有無
- / -
リフォーム
    2025年8月
    キッチン 浴室 トイレ 壁 床
取引条件の
有効期限
2026年03月01日

設備条件

設備条件
  • ペット相談 / ペット飼育可 / ペット専用設備 / リフォーム済 / フローリング / エレベーター / 2面バルコニー / 食器洗い乾燥機 / システムキッチン / カウンターキッチン / 浴室乾燥機 / 温水洗浄便座 / 洗髪洗面化粧台 / 独立洗面台 / 収納豊富 / オートロック / 宅配ボックス
設備(その他)
    -

その他

物件番号
100532503
管理コード
45749
建築確認番号
-
情報更新日
2026年02月15日
次回更新予定日
2026年03月01日
取扱会社
  • 優良不動産販売 株式会社
  • 広島県広島市南区皆実町3丁目3-22 
  • TEL:082-250-0277
  • 広島県知事 (2) 第010939号

Acityタワーズウエスト・タワー棟の他の部屋

  1. 5階

    2LDK (88.73㎡)

    1,8581,000円(69.23万円/坪)

  2. 6階

    2LDK (88.73㎡)

    1,8687,000円(69.62万円/坪)

  3. 7階

    2LDK (71.05㎡)

    1,712万円(79.66万円/坪)

  4. 2000

    3LDK (90.04㎡)

    2,1668,000円(79.57万円/坪)

  5. 20階

    4LDK (110.28㎡)

    2,5336,000円(75.97万円/坪)

  6. 20階

    4LDK (106.26㎡)

    2,5212,000円(78.44万円/坪)

支払いシミュレーション

月々の支払額
9.6
購入希望物件価格
万円
頭金
万円
金利
%
返済額(ボーナス1回分)
万円
返済期間

※ボーナスは自動で年2回分で計算されます。

近隣の物件

  1. Acityタワーズイースト・タワー棟

    広島市安佐南区大塚西3丁目

    4LDK (104.70㎡)

    1,880万円

  2. AcityヒルズアリーナⅠ番館

    広島市安佐南区大塚西6丁目

    3LDK (91.70㎡)

    1,899万円

  3. AcityヒルズアーバンⅠ番館

    広島市安佐南区大塚西6丁目

    3LDK (93.73㎡)

    1,680万円

  4. サーパスタウン大町Ⅰ番館

    広島市安佐南区大町西1丁目

    2LDK (60.60㎡)

    2,299万円

Acityタワーズウエスト・タワー棟

Acityタワーズウエスト・タワー棟

1,8958,000

11,190円

2LDK(88.73㎡)

お気軽にお問い合わせください

無料お問い合わせ

優良不動産販売 株式会社

082-250-0277

10:00~19:00

(休:木曜日・第1・3・5水曜日)