082-250-0277
営業時間:10:00~19:00 定休日:木曜日・第1・3・5水曜日
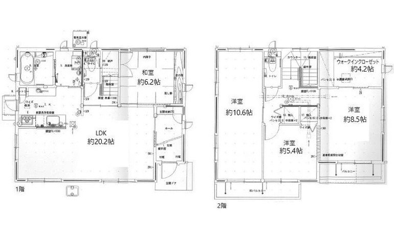
新築一戸建
5,490万円
NEW
広島市西区草津東2丁目
安心の耐震等級3取得☆オール電化でエコ☆開放的な吹抜けのLDK&雨の日も安心のインナーバルコニー◎床下収納2箇所&全室クローゼット完備の収納充実プラン◆小学校すぐ近くでお子様の通学も安心◆駐車2台可能
3LDK (124.66㎡)
新築
売地
2,480万円
佐伯区利松2丁目
約111坪以上の広々土地♪八幡東小学校まで徒歩10分!三和中学校まで徒歩16分!子育てがしやすい立地☆周辺の生活環境が整っています◎【建築条件なし】お好きなハウスメーカーで建築できます!建築プランや費用など、ご希望をなんでもご相談下さい!
広島市佐伯区利松2丁目
367.96㎡
2,380万円
約78坪以上の広々土地♪八幡東小学校まで徒歩10分!三和中学校まで徒歩16分!子育てがしやすい立地☆周辺の生活環境が整っています◎【建築条件なし】お好きなハウスメーカーで建築できます!建築プランや費用など、ご希望をなんでもご相談下さい!
258.92㎡
中古一戸建
3,480万円
安佐南区伴東1丁目
駐車2台可◎約17帖以上の広いリビングでゆっくりくつろげる♪洋室和室が4部屋あり、部屋数充実☆全居室収納◆たっぷり収納できるウォークインクローゼット付き◇アストラムライン伴駅歩4分!交通アクセス良好♪
広島市安佐南区伴東1丁目
4LDK (105.98㎡)
1,950万円
馬木7丁目
家庭菜園やプール等様々な使い方ができる庭付き!18畳のLDKは南東向きで陽当たり良好◎車移動の方に便利な広島東ICまで車で5分!駐車3台可能な広々スペース!来客が多くても安心♪
広島市東区馬木7丁目
4LDK (110.13㎡)
4,640万円
安芸郡府中町桃山2丁目
駐車2台可◎オール電化♪洋室が4部屋あり、部屋数充実☆JR向洋駅歩3分!スーパー・コンビニ・ドラッグストアまで徒歩10分圏内◎府中南小学校まで徒歩8分!府中緑ケ丘中学校まで徒歩16分!子育てしやすい♪
安芸郡府中町桃山2丁目
4LDK (101.01㎡)
7,980万円
南観音町
【建築条件なし】お好きなハウスメーカーで建築できます。建築プランや費用など、ご希望をなんでもご相談下さい!平地・整形角地・2方向公道接道の3拍子揃った好立地◆買主決定後に解体・更地渡しいたします!
広島市西区南観音町
238.06㎡
中古マンション
1,190万円
ルピナス二葉の里
広島駅徒歩14分!利便性と落ち着いた環境を併せ持った好立地【トイレ・浴室リフォーム済み】南向きワイドバルコニーに面した室内は明るく開放的♪陽当り眺望良好で家族団らんが楽しめます♪落ち着ける和室有◆アウトドア用品も収納可能なトランクルーム有
広島市東区二葉の里2丁目
4LDK (81.36㎡)
2,298万円
コスモ三滝本町
敷地内駐車場月額8700円〜9200円♪緑豊かな景観と利便性を兼ねた好立地☆子育て世代に嬉しい環境◆リフォーム【台所・浴室・洗面所・トイレ・・壁、床張替え等】駐輪場・バイク置場有
広島市西区三滝本町1丁目
3LDK (71.54㎡)
2,470万円
安芸区瀬野西6丁目
角地◆約20帖以上の広々LDK☆約10帖以上の広い洋室有り♪洋室和室が4部屋あり、部屋数充実◎約4.2帖のウォークインクローゼット付き◇駐車縦列2台可◎セキスイハウスの家。広いお風呂。ハウスクリーニング済。
広島市安芸区瀬野西6丁目
4LDK (122.92㎡)
2,790万円
安佐北区三入南二丁目
ログハウステイストの注文住宅BESSで施工した住まい。三入南第三公園そば。自然豊かな環境で子育てができる。4方建物なしの陽当たり抜群な明るい家。広い庭でBBQも◎ 土間スペースはバイクやアウトドア収納にも最適。
広島市安佐北区三入南2丁目
2SLDK (102.33㎡)
4,280万円
フローレンス宇品海岸グランドアーク
ペット可◎瀬戸内海が一望できるオーシャンビューマンション♪花火大会が見える!南西向きの角部屋☆2面バルコニーで明るいお部屋!広々108㎡の4LDK☆1室は音楽を楽しめる防音室仕様!WIC3箇所◎子育てしやすい立地!交通アクセスや周辺の生活環境充実◎
広島市南区宇品海岸3丁目
4LDK (108.54㎡)
ペット可
880万円
鈴が峰第4住宅2号棟
南東向きの角部屋☆両面バルコニー♪通風・日照良好◎リビング・洋室部分に二重窓採用◆収納充実◇JR新井口駅歩15分!草津南電停歩8分!セブンイレブン草津梅が台店まで徒歩5分!鈴が峰小学校まで徒歩7分!
広島市西区鈴が峰町
3LDK (85.05㎡)
1,380万円
熊野町呉地2丁目9-
南向きのオール電化住宅◎2025年8月エコキュート交換♪4方に建物が無く全居室2面採光で開放的な明るい住まい◇バーベキューのできる広々した庭あり♪全室収納完備&大型小屋裏収納完備◆駐車可◎
安芸郡熊野町呉地2丁目
3LDK (99.36㎡)
5,680万円
安芸郡海田町南幸町1
土地約140坪の菜園も可能な広々としたお庭有☆築7年ドヒハウス施工のこだわり注文住宅♪防音仕様の音楽ルーム完備!素敵な造作家具付き♪海田南小学校・海田中学校・万惣海田店まで徒歩7分☆並列駐車2台可◎
安芸郡海田町南幸町
3LDK (105.85㎡)
2,280万円
南区西霞町
お庭のあるゆとりの5LDK☆二世帯住宅にも!スーパー・小学校徒歩圏内◆
広島市南区西霞町
5LDK (134.15㎡)
来店予約