6件
-
3,090万円
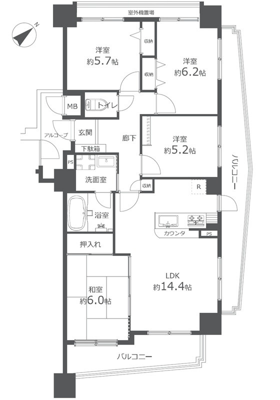
2階 / 64.52㎡ / 3LDK /築27年 /11階建
- エレベーター
- リフォーム済
- ウォークインクロゼット
- バス・トイレ別
- バルコニー
- フローリング
リノベーション物件☆収納豊富な3LDK!ゆめタウン 大町店まで徒歩3分◆◆自由にネット検索できるタブレットをご用意!広島全エリア約8000物件を常時オープン⇒ご自分で条件を入力し納得いくまで探せます!
-
2,180万円
11階 / 76.39㎡ / 2LDK /築25年 /11階建
- 陽当り良好
- エレベーター
- バス・トイレ別
- 室内洗濯機置場
- バルコニー
- 都市ガス
全室バルコニーに面した陽当り良好な物件♪広々20.5帖のLDKは2面採光の出窓仕様☆明るい陽射しと気持ちの良い風が通りぬけるくつろげる空間◎ほっこり落ち着ける和室有り!AL古市駅徒歩1分の好立地◆宅配ボックス完備
-
1,799万円
7階 / 68.83㎡ / 3LDK /築50年 /7階建
- エレベーター
- リフォーム済
- バス・トイレ別
- 室内洗濯機置場
- 都市ガス
- TVモニタ付インターホン
リフォーム内容【キッチン・浴室・洗面台・トイレ・建具・照明器具・給湯器・水周り全交換・クロス・フローリング・CF・エアコン新規設置】トランクルームあり☆川沿いの静かな環境◇小学校徒歩圏内でお子様を近くに感じられます◎JR古市駅まで徒歩10分♪
-
1,499万円
1階 / 61.04㎡ / 2LDK /築39年 /5階建
- 陽当り良好
- リフォーム済
- 専用庭
- バス・トイレ別
- 室内洗濯機置場
- フローリング
南西角住戸!専用庭に面した風通し陽当り良好な物件♪小さなお子様の居る家庭に安心の1階【リフォーム歴:台所・トイレ・洗面所・壁、床張替え等】AL中筋駅まで徒歩3分の交通アクセス良好な立地◆利便施設充実
-
3,399万円
4階 / 81.18㎡ / 4LDK /築27年 /15階建
- 陽当り良好
- エレベーター
- リフォーム済
- バス・トイレ別
- 室内洗濯機置場
- フローリング
リフォーム【台所・浴室・洗面所・トイレ・建具・壁、床張替等】LEDライト新規取付☆2面バルコニーで陽当り通風良好♪散歩や気分転換にピッタリのリバーサイド!駐車場10000円~/月◆AL古市駅徒歩2分
オートロック付きで安心☆新規リノベーション物件♪(システムキッチン・ユニットバス・洗面化粧台・建具・トイレ新規交換、フローリング・クロス全室張替、ハウスクリーニング等)水まわりトラブル365日対応♦