5件
-
新築
2,980万円
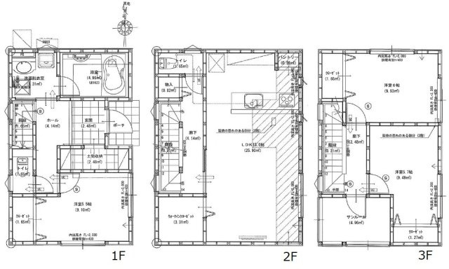
- / 78.66㎡ / 2LDK+S(納戸) /新築 /3階建
- オール電化
- システムキッチン
- IHクッキングヒーター
- 食器洗い乾燥機
- 浴室乾燥機
- 浴室1坪以上
木造在来工法の3階建てオール電化住宅☆エコキュート搭載で光熱費節約♪玄関電気錠システム採用!EV自動車用回路完備◎角地◎
-
新築
3,780万円
- / 104.32㎡ / 3LDK /新築 /3階建
- ウォークインクロゼット
- システムキッチン
- カウンターキッチン
- 浴室1坪以上
- TVモニタ付インターホン
- 温水洗浄便座
スパーク江波店すぐ側!2階がLDKの開放的な土間収納のある家☆サンルーム有広島県内を中心に約8,000件を自由に検索できる!カフェコーナー登場!賃貸にするか購入するかまだきめてない…そんな方も大歓迎!
-
新築
3,780万円
- / 104.32㎡ / 3LDK /新築 /3階建
- 陽当り良好
- システムキッチン
- カウンターキッチン
- 浴室1坪以上
- 温水洗浄便座
- 閑静な住宅地
スパーク江波店すぐ側!2階がLDKの開放的な土間収納のある家☆サンルーム有◆自由にネット検索できるタブレットをご用意!広島全エリア約8000物件を常時オープン⇒ご自分で条件を入力し納得いくまで探せます
-
3,690万円
- / 112.24㎡ / 3SLDK /築1年 /3階建
- 駐車2台可
- 陽当り良好
- オール電化
- ウォークインクロゼット
- システムキッチン
- カウンターキッチン
商品券最大15万円分をプレゼント!
【優良不動産販売でのご成約の特典♪】
※物件により、手数料の10%相当額
◆駐車並列2台可◎
◆省エネ住宅で光熱費節約☆彡
◆高速入口まで1分で便利!
◆観音新町3丁目バス停まで徒歩1分♪
◆◇◇◆◇◇◆
【疑問や不安ゼロ】あなたに寄り添った、物件探しを始めましょう!
◎自由にネット検索できるタブレットをご用意!
広島全エリア約6000物件を常時オープン公開◎
⇒ご自分で条件を入力し、納得いくまで探せます。
◆新着・計画中物件など…
豊富な物件情報は『関連リンク』へ
優良不動産販売
広島市南区皆実町3丁目3-22
EVコンセント敷設!駐車2台可能◎舟入南電停徒歩4分!LEDダウンライト付きのお洒落な3階建て♪2階リビングは眺望良好◎大型パントリー設置済みで日々のストックもスッキリ収納◆宅配ボックス完備