8件
-
3,380万円
- / 112.54㎡ / 5LDK /築5年 /2階建
- 駐車2台可
- 都市ガス
- 陽当り良好
- ウォークインクロゼット
- システムキッチン
- カウンターキッチン
高台の角地で開放感と眺望を楽しむゆとりの住まい♪陽当り・風通し良好◇蓄電池完備の太陽光発電システム◆駐車3台可◎ゆとりの5LDk◇3帖のWIC・各居室収納と豊富な収納◎西広バイパスへのアクセス良好!
-
新築
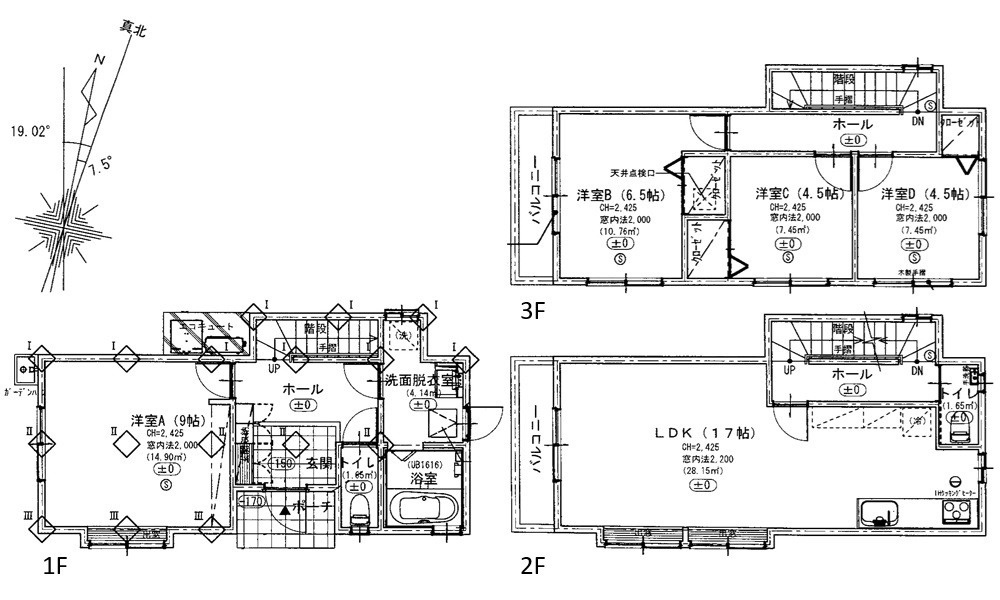
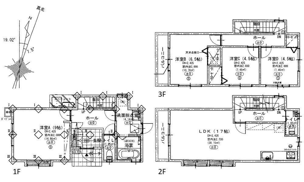
4,980万円
- / 101.84㎡ / 3LDK+S(納戸) /新築 /3階建
- 都市ガス
- 収納豊富
- システムキッチン
- カウンターキッチン
- 浴室1坪以上
- バス・トイレ別
18.3帖の広々LDK☆SIC・納戸など収納豊富な間取り◆住環境良好♪駐車可☆ビルトインガレージ◎2階リビングで目線を気にせずくつろげます◆アクセス良好!通勤通学に便利☆パントリー・カップボードあり♪
-
5,398万円
- / 102.67㎡ / 3LDK /築1年 /2階建
- 駐車2台可
- オール電化
- 収納豊富
- ウォークインクロゼット
- システムキッチン
- カウンターキッチン
オール電化住宅☆吹抜けがあり眺望が良い◎プライベートガーデン有り♪カーテン・照明・家具付き◆草津南電停歩10分!スーパー・コンビニ・ドラッグストア・郵便局等が近くにあり、周辺の生活環境が整っています◇
-
新築
3,198万円
- / 102.52㎡ / 4LDK /新築 /2階建
- 駐車2台可
- 都市ガス
- 陽当り良好
- 収納豊富
- システムキッチン
- カウンターキッチン
省エネ給湯器エコジョーズ採用◎木目調のお洒落なリビング&キッチン♪雨や黄砂でも洗濯干しが出来る広々3.7帖のサンルーム♪日当たりの良い洋室4部屋◎駐車並列2台可能!前面道路幅6m!
-
2,480万円
- / 105.99㎡ / 4LDK /築46年 /2階建
- 陽当り良好
- オール電化
- リフォーム済
- 収納豊富
- システムキッチン
- IHクッキングヒーター
山田小学校目の前!公園近くで子育て環境良好な立地♪耐震工事・防蟻予防工事済み◎アウトドアリビングを楽しめる広いお庭の付いた63坪超の物件!食洗機・浴室乾燥機など設備充実◆西広島バイパス・石内バイパス・安佐南区へのアクセス良好◎
-
新築
2,880万円
- / 110.53㎡ / 4LDK /新築 /3階建
- 陽当り良好
- オール電化
- 収納豊富
- システムキッチン
- IHクッキングヒーター
- 浴室1坪以上
道路幅12.4mと広く離合や駐車も楽々♪駐車2~3台可能なスペース有!省エネ基準を満たしたオール電化♪省令準耐火構造・断熱効果の高い複層ガラス仕様♪室内を快適温度にキ―プする24時間換気システム搭載!
-
新築
4,090万円
- / 99.63㎡ / 3LDK /新築 /2階建
- 駐車2台可
- 都市ガス
- 陽当り良好
- システムキッチン
- カウンターキッチン
- 浴室乾燥機
商品券最大15万円分をプレゼント!
【優良不動産販売でのご成約の特典♪】
※物件により、手数料の10%相当額
◆古田小学校・古田中学校
◆駐車2台可(車種による)
◆フラット35S利用可能(Aプラン)
◆人工大理石天板を使用した浄水機能付きキッチン♪
◆◇◇◆◇◇◆
【疑問や不安ゼロ】あなたに寄り添った、物件探しを始めましょう!
◎自由にネット検索できるタブレットをご用意!
広島全エリア約6000物件を常時オープン公開◎
⇒ご自分で条件を入力し、納得いくまで探せます。
◆新着・計画中物件など…
豊富な物件情報は『関連リンク』へ
優良不動産販売
広島市南区皆実町3丁目3-22
太陽光パネル搭載!耐震等級3☆草津東電停まで徒歩6分!利便施設充実の好立地◆折り上げ天井やインナーバルコニーなど暮らしやすさを考えた嬉しい一工夫◆LED照明・食洗器など初期設備豊富◆駐車2台可能