4件
-
ペット可
2,680万円
- / 104.43㎡ / 2LDK /築23年 /2階建
- 駐車2台可
- 陽当り良好
- オール電化
- ウォークインクロゼット
- システムキッチン
- カウンターキッチン
自然が身近にあり、公園が多く子育て世代に適したエリア◇オール電化住宅◆駐車2台可能◎全室2面採光☆陽当たり良好♪たっぷり収納できるウォークインクローゼット有り◎ウッドデッキ付き☆スーパー・コンビニ徒歩圏内!
-
新築
3,590万円
- / 109.35㎡ / 4LDK /新築 /2階建
- オール電化
- システムキッチン
- カウンターキッチン
- 食器洗い乾燥機
- 浴室乾燥機
- 浴室1坪以上
国迫団地バス停歩2分!スーパーまで徒歩3分!オール電化☆太陽光パネル搭載☆広いリビングでゆっくりくつろげます♪クローゼットが3ヶ所以上あり収納充実!無料点検実施(引渡後3ケ月・2年・5年・10年)
-
新築
4,290万円
- / 106.81㎡ / 4LDK /新築 /2階建
- 駐車2台可
- 陽当り良好
- 収納豊富
- ウォークインクロゼット
- システムキッチン
- カウンターキッチン
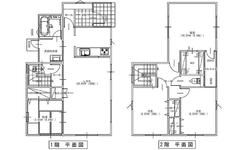
18帖の2面採光の明るく開放的なLDK♪続き和室でゆっくりくつろげる空間♪駐車4台可能な広いスペース!車の入出庫がスムーズ&大人数の来客にも対応◎
駐車場3台可能◎土地面積100坪以上のゆとりある住まい♪洋室和室が7部屋あり、部屋数充実☆徒歩圏に生活施設充実!JR西広島駅歩17分!己斐小学校・己斐中学校まで徒歩10分圏内!