72件
-
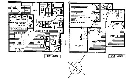
4,490万円
- / 150.24㎡ / 5LDK /築29年 /3階建
- 駐車2台可
- 都市ガス
- 陽当り良好
- バリアフリー
- システムキッチン
- バス・トイレ別
イオンモール広島祇園まで徒歩5分と買い物や飲食店も充実☆静かな住宅街で住環境も良好な立地!並列駐車2台可◎ゆとりの5LDK◆武田山登山口バス停徒歩1分◎
-
新築
3,635万円
- / 96.88㎡ / 3LDK /予定 /2階建
- 駐車2台可
- 都市ガス
- 陽当り良好
- 収納豊富
- ウォークインクロゼット
- システムキッチン
JR安芸長束駅徒歩10分!長束西小・長束中学校すぐそばで子育て安心♪家事動線に配慮した使いやすい間取り☆SIC・WIC付で収納豊富、駐車2台可◎サンルーム付で雨の日も安心して洗濯可能!快適に暮らせる☆
-
1,798万円
- / 85.64㎡ / 3SDK /築11年 /2階建
- 陽当り良好
- オール電化
- リフォーム済
- 収納豊富
- システムキッチン
- カウンターキッチン
リフォーム物件【敷地内(土間部分)高圧洗浄、クロス張替(※2階居室天井・収納内部・納戸は既存)、床CF張替(1階トイレ・洗面)、ハウスクリーニングなど】バルコニー側は遮るものがなく明るいお部屋で眺望良好◎大きなお車も駐車可能☆
-
4,299万円
- / 109.29㎡ / 4LDK /築20年 /3階建
- 駐車2台可
- プロパンガス
- 陽当り良好
- リフォーム済
- システムキッチン
- 食器洗い乾燥機
リフォーム済 キッチン・風呂・トイレ・洗面新品交換、壁、給湯器、白蟻点検ほか◆陽当り良好☆全室2面採光の明るい住まい!ゆとりの4LDK◎全居室収納あり◇食洗機、浴室乾燥、追炊機能付き!並列駐車2台可
-
780万円
- / 123.51㎡ / 5LDK /築32年 /2階建
- 駐車2台可
- 陽当り良好
- ウォークインクロゼット
- システムキッチン
- バス・トイレ別
- 室内洗濯機置場
【積水ハウス施工】注文住宅。各居室に収納を確保し、使い勝手の良い間取りが魅力★桐陽台公園至近で、団地内の落ち着いた住環境。南向きで陽当たり良好、広々とした庭付き◎お子様やペットを見守りながら安心して過ごせる。
-
新築
2,998万円
- / 105.97㎡ / 4LDK /新築 /2階建
- 駐車2台可
- オール電化
- 収納豊富
- ウォークインクロゼット
- システムキッチン
- カウンターキッチン
並列駐車3台可能◎約18帖以上の広々LDKが魅力のオール電化住宅♪洋室4部屋のゆとりある間取りで部屋数充実!3.6帖のサンルーム完備で、雨の日のお洗濯も安心◎1.6帖のWIC付きで収納豊富!JR上八木駅徒歩8分の好立地!
-
新築
4,390万円
- / 103.50㎡ / 4LDK /新築 /2階建
- 駐車2台可
- オール電化
- 収納豊富
- システムキッチン
- カウンターキッチン
- 浴室乾燥機
駐車2台可能◎オール電化住宅☆エコキュート採用で経済的♪対面式キッチンで料理をしながら家族との会話が弾む!洋室4部屋で部屋数充実◎SIC付きで収納豊富!JR広島駅徒歩19分!小・中学校徒歩16分圏内で子育てにも安心♪
-
新築
4,590万円
- / 102.67㎡ / 3SLDK /新築 /2階建
- 駐車2台可
- オール電化
- 収納豊富
- システムキッチン
- カウンターキッチン
- 浴室乾燥機
駐車2台可能◎18帖超の広々LDKでゆったりくつろげる♪オール電化住宅☆エコキュート採用◎パントリー付きで家事ラク!6帖の洋室が3部屋で部屋数充実♪納戸付きで収納豊富!JR広島駅徒歩19分!小・中学校徒歩16分圏内で子育てにも安心♪
-
新築
4,280万円
- / 98.54㎡ / 3LDK+S(納戸) /新築 /2階建
- 駐車2台可
- 都市ガス
- 陽当り良好
- 建設住宅性能評価書付
- 収納豊富
- ウォークインクロゼット
駐車並列2台可◎約17帖以上の広々LDK☆SIC・WIC付きで収納豊富♪LED照明(玄関・廊下・キッチン等)宅配ボックス完備☆川内小学校徒歩8分!AL古市橋駅歩16分◎生活利便性良好◎安心の住環境♪
-
新築
3,980万円
- / 98.53㎡ / 4LDK /新築 /2階建
- 駐車2台可
- 都市ガス
- 陽当り良好
- 建設住宅性能評価書付
- 収納豊富
- ウォークインクロゼット
駐車並列2台可◎約17帖以上の広々LDK☆洋室4部屋で部屋数充実!LED照明(玄関・廊下・キッチン等)宅配ボックス完備♪川内小学校徒歩8分!AL古市橋駅歩16分◎生活利便性良好で安心の住環境です♪♪♪
-
3,180万円
- / 95.22㎡ / 3LDK /築2年 /2階建
- 駐車2台可
- オール電化
- 収納豊富
- ウォークインクロゼット
- システムキッチン
- カウンターキッチン
建築後未入居◆駐車2台可能☆約17帖超の広々LDK♪オール電化住宅◇エコキュート採用◎WIC付で収納充実!全居室収納♪食洗機・浴室乾燥機完備!TVモニタ付インターホンで安心!JR三滝駅徒歩15分!
-
1,380万円
- / 87.68㎡ / 5DK /築45年 /2階建
- プロパンガス
- 陽当り良好
- バス・トイレ別
- 室内洗濯機置場
- バルコニー
- ガスコンロ
商品券最大15万円分をプレゼント!
【優良不動産販売でのご成約の特典♪】
※物件により手数料の10%分相当額
変動金利 『0.95%』 をご紹介!!
※借入には一定の条件があります。
審査の結果により条件が異なる場合があります。
その他、住宅ローンにマイカーローンやカードローンの残債を組み込んだり、
ローン期間中にスーパーなどでのお買い物が5%OFFになる銀行のご提案も可能♪
◆知らずに、損している…??◆
・年収によってどの位の物件が買えるの?
・頭金が無いけどマイホームは購入可能?
・勤続年数や自営業で不安なんだけど・・・
など色々な疑問にお答え致します!!
◆「お子様・女性にやさしい店づくり」◆
私たちは、自分の家族・友人など
大切な人と住まいを探すように…
同じ想いで、お手伝いさせて頂きます!
1.店内をくつろげる【カフェ型】に改装しました♪
2.しつこい押し売り営業はしません!!
3.専門用語を使わずに【お客様目線】で対応致します。
4.良い点・悪い点もプロとして情報提供します。
5.不安を抱えたまま契約を進める事は、ございません。
6.ベストな住宅ローンの資金計画をご提案します。
7.ご成約キャンペーン中☆
◎最大40%の値引き!!
ソファー・机・インテリア雑貨・カーテン等の家具を、
優良不動産販売の提携店を紹介し、優待価格で購入できます♪
LINEでのお問い合わせは、『@760efnye』で検索
◎物件が決まる前に、仮審査のみの受付もしております。
◎住宅ローン相談会も開催中です。
SUUMOに載っていない物件も
多数ご紹介できます!
優良不動産販売HP https://yuryo-fudousan.com
・お急ぎの方は担当の携帯
080-4379-2172 大江
まで直接ご連絡下さい♪
-
新築
4,280万円
- / 99.36㎡ / 4LDK /新築 /2階建
- 駐車2台可
- 陽当り良好
- オール電化
- バリアフリー
- 収納豊富
- システムキッチン
川内小学校徒歩3分!JR安芸矢口駅徒歩15分!コンビニ徒歩圏内♪駐車3台可能◎オール電化住宅☆開放感のある対面式キッチン♪洋室4部屋で部屋数充実!全居室収納付き◎防犯カメラ・宅配ボックス完備♪
-
1,280万円
- / 106.82㎡ / 4LDK /築39年 /2階建
- オール電化
- リフォーム済
- バス・トイレ別
- バルコニー
- 床下収納
- 公共下水
オール電化住宅◎リフォーム物件♪【キッチン・バス・トイレ交換、クロス張替、畳表替え、LDフロア張替、エコキュート新品交換等】洋室・和室あわせて4部屋の部屋数充実!洋和の両方楽しめる住まい☆駐車可能◎
-
2,688万円
- / 101.02㎡ / 3LDK+S(納戸) /築10年 /2階建
- 駐車2台可
- 陽当り良好
- ウォークインクロゼット
- システムキッチン
- カウンターキッチン
- 浴室1坪以上
陽当り・風通し良好☆収納のある3畳の書斎あり☆WICやパントリーと収納スペースも豊富◎駐車2台可◇前面道路6m以上で駐車もラクラク♪緑豊かな住宅地でのびのび子育て◎春日野口バス停まで徒歩2分◇
-
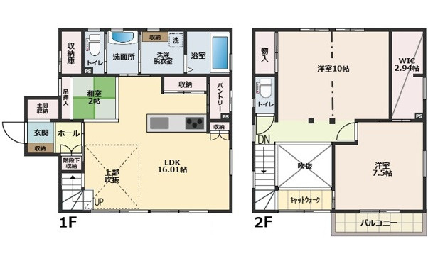
新築
3,880万円
- / 94.88㎡ / 3LDK /新築 /3階建
- 都市ガス
- 陽当り良好
- 収納豊富
- システムキッチン
- 浴室1坪以上
- バス・トイレ別
家具付分譲住宅☆リビングエアコン・LED照明・洗面室用暖房設置済♪短時間でふんわり乾燥できる衣類乾燥機「乾太くん」ZEH水準をみたした省エネ住宅◆車好きに嬉しいインナーガレージ!照明やEVコンセント付
-
2,995万円
- / 127.92㎡ / 3LDK+S(納戸) /築17年 /3階建
- 駐車2台可
- オール電化
- リフォーム済
- 収納豊富
- バルコニー
- 閑静な住宅地
【全室クロス張替済みのリフォーム物件】駐車2台可能のオール電化住宅☆約17帖超の広々LDK♪納戸2箇所で収納充実。JR安芸長束駅徒歩10分、スーパー・コンビニ徒歩8分圏内で生活便利な立地◎
-
新築
3,280万円
- / 101.43㎡ / 3LDK /新築 /2階建
- 駐車2台可
- オール電化
- 収納豊富
- ウォークインクロゼット
- システムキッチン
- カウンターキッチン
駐車2台可能◎安心経済的なオール電化住宅♪約17帖以上の広々LDK☆約8.3帖の広々洋室あり♪サンルーム付き◎JR梅林駅徒歩15分!梅林小学校まで徒歩10分で通学安心の立地です♪子育て世帯におすすめ☆
-
2,480万円
- / 138.29㎡ / 4LDK+S(納戸) /築24年 /2階建
- 都市ガス
- 陽当り良好
- カウンターキッチン
- バス・トイレ別
- 室内洗濯機置場
- バルコニー
第1東亜ハイツ上バス停徒歩1分☆1階と2階に分かれ、ゆったり過ごせる二世帯住宅です!陽当り・眺望・風通し良好♪収納スペースが豊富◎前面道路8m以上で駐車もラクラク◎
-
1,380万円
- / 84.06㎡ / 3LDK /築15年 /2階建
- エアコン
リフォーム済み♪(壁クロス貼替え)リビングにエアコン・カーテン設置◎亀山小学校まで徒歩6分!亀山中学校まで徒歩17分!交通量が少なく、子供が遊べる環境♪近隣に商業施設が充実している利便性の高さが魅力☆
-
新築
2,699万円
- / 103.91㎡ / 4LDK /新築 /2階建
- 駐車2台可
- プロパンガス
- 陽当り良好
- 収納豊富
- ウォークインクロゼット
- システムキッチン
駐車並列2台可能◎日当り良好♪約19帖以上の広々LDK☆洋室が4部屋あり、部屋数充実◎食材や日用品等ストック置場に便利なパントリー収納◎SIC・WICなど収納豊富!JR可部駅歩15分!可部南小学校徒歩12分!
-
新築
2,480万円
- / 110.97㎡ / 4LDK /予定 /2階建
- 駐車2台可
- 陽当り良好
- オール電化
- 収納豊富
- システムキッチン
- カウンターキッチン
安心のオール電化住宅☆豊富な収納スペース◎防犯カメラ付でセキュリティ充実◆広島市内でマイホームの購入をお考えなら、お気軽にお問い合わせください(*^_^*)
-
新築
2,380万円
- / 105.29㎡ / 4LDK /予定 /2階建
- 駐車2台可
- オール電化
- 収納豊富
- システムキッチン
- カウンターキッチン
- 浴室乾燥機
安心のオール電化住宅☆豊富な収納スペース◎防犯カメラ付でセキュリティ充実◆広島県内を中心に約9000件を自由に検索できる!カフェコーナー登場!賃貸にするか購入するかまだきめてない…そんな方も大歓迎!
-
新築
2,180万円
- / 101.24㎡ / 3LDK /予定 /2階建
- 駐車2台可
- オール電化
- 収納豊富
- システムキッチン
- カウンターキッチン
- 浴室乾燥機
安心のオール電化住宅☆豊富な収納スペース◎防犯カメラ付でセキュリティ充実◆広島県内を中心に約9000件を自由に検索できる!カフェコーナー登場!賃貸にするか購入するかまだきめてない…そんな方も大歓迎!
-
4,180万円
- / 165.28㎡ / 5LDK /築34年 /3階建
- 駐車2台可
- 都市ガス
- リフォーム済
- 収納豊富
- システムキッチン
- 食器洗い乾燥機
駐車2台可能◎5LDK◆部屋数充実◇洋室和室の両方が楽しめる住宅☆リフォーム履歴有り♪(キッチン・浴室・トイレ・洗面所等)水回りすべて窓付き◎スーパー・コンビニまで徒歩5分圏内!家事のお助け食器洗浄乾燥機・浴室暖房乾燥機など完備♪
-
新築
2,698万円
- / 99.36㎡ / 4LDK+S(納戸) /新築 /2階建
- 駐車2台可
- 都市ガス
- 陽当り良好
- 収納豊富
- システムキッチン
- カウンターキッチン
教育施設充実で子育て環境良好☆エコジョーズ採用◆南向き全室2面採光で開放的◆洗濯干しやくつろぎスペースとして活用できるサンルーム◎キッチン後ろの納戸は食品のストックに便利♪◆駐車並列2台◆南向き6m以上の前面道路♪
-
新築
2,698万円
- / 99.36㎡ / 4LDK+S(納戸) /新築 /2階建
- 駐車2台可
- 都市ガス
- 陽当り良好
- 収納豊富
- システムキッチン
- カウンターキッチン
商品券最大15万円分をプレゼント!
【優良不動産販売でのご成約の特典♪】
※物件により手数料の10%分相当額
変動金利 『0.95%』 をご紹介!!
※借入には一定の条件があります。
審査の結果により条件が異なる場合があります。
その他、住宅ローンにマイカーローンやカードローンの残債を組み込んだり、
ローン期間中にスーパーなどでのお買い物が5%OFFになる銀行のご提案も可能♪
◆知らずに、損している…??◆
・年収によってどの位の物件が買えるの?
・頭金が無いけどマイホームは購入可能?
・勤続年数や自営業で不安なんだけど・・・
など色々な疑問にお答え致します!!
◆「お子様・女性にやさしい店づくり」◆
私たちは、自分の家族・友人など
大切な人と住まいを探すように…
同じ想いで、お手伝いさせて頂きます!
1.店内をくつろげる【カフェ型】に改装しました♪
2.しつこい押し売り営業はしません!!
3.専門用語を使わずに【お客様目線】で対応致します。
4.良い点・悪い点もプロとして情報提供します。
5.不安を抱えたまま契約を進める事は、ございません。
6.ベストな住宅ローンの資金計画をご提案します。
7.ご成約キャンペーン中☆
◎最大40%の値引き!!
ソファー・机・インテリア雑貨・カーテン等の家具を、
優良不動産販売の提携店を紹介し、優待価格で購入できます♪
LINEでのお問い合わせは、『@760efnye』で検索
◎物件が決まる前に、仮審査のみの受付もしております。
◎住宅ローン相談会も開催中です。
SUUMOに載っていない物件も
多数ご紹介できます!
優良不動産販売HP https://yuryo-fudousan.com
・お急ぎの方は担当の携帯
080-4379-2172 大江
まで直接ご連絡下さい♪
-
2,798万円
- / 102.26㎡ / 4LDK /築12年 /2階建
- 駐車2台可
- オール電化
- リフォーム済
- 収納豊富
- システムキッチン
- カウンターキッチン
【屋根・外壁改修履歴有り♪】駐車2台可◎太陽光発電設備を備えたオール電化住宅☆室内外ともに丁寧に使用されており、設備・内装の状態も良好です♪ガーデンルーム付◇洋室和室が4部屋あり、部屋数充実!対面式キッチン。システムキッチン。
-
1,680万円
- / 34.66㎡ / 4LDK /築72年 /1階建
- プロパンガス
- カウンターキッチン
- 浴室1坪以上
- バス・トイレ別
- 公共下水
JR可部駅まで徒歩15分☆敷地面積50坪◆平屋建て◎広島市内でマイホームの購入をお考えなら、お気軽にお問い合わせください(*^_^*)
JR安芸長束駅徒歩8分☆小中学校・生活利便施設が徒歩圏内で便利な立地!オール電化住宅◆駐車2台可(車種による)◆全居室2面採光の明るい住まい!豊富な収納スペース◆マルシェー長束店徒歩3分◎