Jcity高須弐番館 

2,880万円

広島県広島市西区高須3丁目3-6

広島電鉄宮島線「東高須」駅徒歩6分

広島電鉄本線「広電西広島(己斐)」駅徒歩15分

広島電鉄宮島線「高須」駅徒歩8分

価格
2,880万円
間取り
3LDK
向き
南東
所在地
広島県広島市西区高須3丁目3-6
交通

広島電鉄宮島線東高須」駅 徒歩6分

広島電鉄本線広電西広島(己斐)」駅 徒歩15分

広島電鉄宮島線高須」駅 徒歩8分

専有面積
67.63㎡
築年月
2003年4月(築22年)

オープンハウス

日時 2025年12月14日 ~ 2025年12月14日  10:30 ~ 16:30
  • ※直接現地へご来場ください
  • 現地にてスタッフがお待ちしております!
    お気軽にお越しくださいませ。

    特別変動金利 『0.635%』 をご紹介!!
    ※借入には一定の条件があります。
     審査の結果により条件が異なる場合があります。
    その他、住宅ローンにマイカーローンやカードローンの残債を組み込んだり、
    ローン期間中にスーパーなどでのお買い物が5%OFFになる銀行のご提案も可能♪
    ◆知らずに、損している…??◆
    ・年収によってどの位の物件が買えるの?
    ・頭金が無いけどマイホームは購入可能?
    ・勤続年数や自営業で不安なんだけど・・・
    など色々な疑問にお答え致します!!

    ◆「お子様・女性にやさしい店づくり」◆
    私たちは、自分の家族・友人など
    大切な人と住まいを探すように…
    同じ想いで、お手伝いさせて頂きます!

    1.店内をくつろげる【カフェ型】に改装しました♪
    2.しつこい押し売り営業はしません!!
    3.専門用語を使わずに【お客様目線】で対応致します。
    4.良い点・悪い点もプロとして情報提供します。
    5.不安を抱えたまま契約を進める事はございません。
    6.ベストな住宅ローンの資金計画をご提案します。
    7.ご成約キャンペーン中☆

    ◎最大40%の値引き!!
    ソファー・机・インテリア雑貨・カーテン等の家具を、
    優良不動産販売の提携店を紹介し、特別価格で購入できます♪
    LINEでのお問い合わせは、『@760efnye』で検索

    ◎物件が決まる前に、仮審査のみの受付もしております。
    ◎住宅ローン相談会も開催中です。

物件の特徴

  • バストイレ別

  • 室内洗濯機置場

  • 独立洗面台

  • 浴室乾燥機

  • オートロック

  • エレベーター

セールスポイント

11月フルリフォーム完了済♪ 12月14日(日)☆初!オープンハウス開催☆10:30~16:30 北棟404号室を呼び出してください!現地にてスタッフがお待ちしております!お気軽にお越しくださいませ♪

基本情報

管理費
6,400円
修繕積立金
10,700円
修繕積立基金
-
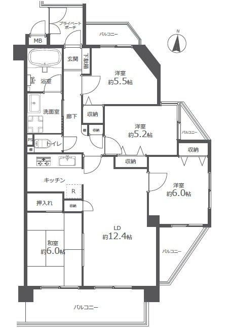
間取り / 詳細
3LDK
LDK 13.7帖/和室 6.0帖/洋室 5.7帖/洋室 5.4帖
向き
南東
専有面積
67.63㎡
バルコニー面積
9.46㎡
その他面積
-
-
-
所在階 / 階建て
4階 / 6階建
建物構造
鉄筋コンクリート
築年月
2003年4月(築22年)
種別
中古マンション
駐車場 /
月額料金
空有 8,000円 (税込) 平面駐車場引継可
土地権利
所有権
土地
(敷金 / 保証金)
- / -
国土法届出要否
不要
接道状況
-
用途地域
第一種住居
地勢
-
都市計画
-
現況
空家
引渡し
即時
取引態様
売主
棟総戸数
-
管理形態
管理会社に全部委託
管理会社 /
管理組合有無
- / -
リフォーム
    2025年11月
    キッチン 浴室 トイレ 壁 床 全室 洗面、全建具交換
取引条件の
有効期限
2025年12月14日

設備条件

設備条件
  • ペット相談 / ペット飼育可 / 陽当り良好 / 閑静な住宅地 / リフォーム済 / 眺望良好 / オープンハウス / 仲介手数料無料 / 室内洗濯機置場 / フローリング / バルコニー / エレベーター / 駐輪場 / ガスコンロ / 食器洗い乾燥機 / システムキッチン / バス・トイレ別 / 浴室乾燥機 / 温水洗浄便座 / 洗面台 / 独立洗面台 / トランクルーム / 収納豊富 / オートロック / 宅配ボックス
設備(その他)
    -

その他

物件番号
97319702
管理コード
11111
建築確認番号
-
情報更新日
2025年12月07日
次回更新予定日
2025年12月14日
取扱会社
  • 優良不動産販売 株式会社
  • 広島県広島市南区皆実町3丁目3-22 
  • TEL:082-250-0277
  • 広島県知事 (2) 第010939号

支払いシミュレーション

月々の支払額
9.6
購入希望物件価格
万円
頭金
万円
金利
%
返済額(ボーナス1回分)
万円
返済期間

※ボーナスは自動で年2回分で計算されます。

近隣の物件

  1. パーク・シティ庚午中

    広島市西区庚午中4丁目

    3LDK (77.29㎡)

    3,598万円

  2. ロイヤルシティビュー観音

    広島市西区南観音町

    3LDK (66.74㎡)

    3,690万円

  3. ポレスター東高須 THE RESIDENCE

    広島市西区庚午北2丁目

    2LDK (59.19㎡)

    4,100万円

  4. グランドメゾン井口

    広島市西区井口5丁目

    4LDK (83.63㎡)

    3,599万円

Jcity高須弐番館 

Jcity高須弐番館 

2,880万円

6,400円

3LDK(67.63㎡)

お気軽にお問い合わせください

無料お問い合わせ

優良不動産販売 株式会社

082-250-0277

10:00~19:00

(休:木曜日・第1・3・5水曜日)