フローレンス羽衣町パークアヴェニュー

3,900万円

広島県広島市中区羽衣町12

広島電鉄宇品線「日赤病院前」駅徒歩10分

広島電鉄宇品線「鷹野橋」駅徒歩11分

広島バス「羽衣町(広島県)」バス停

価格
3,900万円
間取り
3LDK
向き
-
所在地
広島県広島市中区羽衣町12
交通

広島電鉄宇品線日赤病院前」駅 徒歩10分

広島電鉄宇品線鷹野橋」駅 徒歩11分

広島バス「羽衣町(広島県)」バス停下車 徒歩2分

専有面積
70.65㎡
築年月
2018年2月(築8年)

イベント情報

  • ※事前に必ずお問い合わせください

物件の特徴

  • バストイレ別

  • TVモニタ付きインターホン

  • カウンターキッチン

  • エレベーター

セールスポイント

通勤・通学に便利な日赤病院前電停徒歩10分☆5階部分、2面バルコニーのある陽当りの良い角部屋です☆全室収納完備◎都市ガス◎置き配に便利なアルコープ◎お気軽にお問い合わせください♪

基本情報

管理費
6,700円
修繕積立金
10,000円
修繕積立基金
-
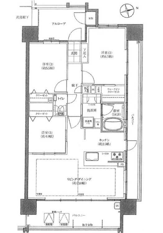
間取り / 詳細
3LDK
LD 13.0帖/K 3.5帖/洋室 6.5帖/洋室 5.5帖/洋室 4.0帖
向き
-
専有面積
70.65㎡
バルコニー面積
24.00㎡
その他面積
-
-
-
所在階 / 階建て
5階 / 15階建
建物構造
鉄筋コンクリート
築年月
2018年2月(築8年)
種別
中古マンション
土地権利
所有権
土地
(敷金 / 保証金)
- / -
国土法届出要否
不要
接道状況
-
用途地域
第二種住居/近隣商業
地勢
-
都市計画
-
現況
空家
引渡し
即時
取引態様
一般媒介
棟総戸数
42戸
管理形態
管理会社に全部委託
管理会社 /
管理組合有無
- / -
取引条件の
有効期限
2026年03月01日

設備条件

設備条件
  • フローリング / バルコニー / 都市ガス / エレベーター / 2面バルコニー / 照明器具付き / アルコーブ / システムキッチン / カウンターキッチン / バス・トイレ別 / 温水洗浄便座 / ウォークインクロゼット / TVモニタ付インターホン / 角部屋
設備(その他)
    -

その他

物件番号
95064322
管理コード
44384
建築確認番号
-
情報更新日
2026年02月15日
次回更新予定日
2026年03月01日
取扱会社
  • 優良不動産販売 株式会社
  • 広島県広島市南区皆実町3丁目3-22 
  • TEL:082-250-0277
  • 広島県知事 (2) 第010939号

支払いシミュレーション

月々の支払額
9.6
購入希望物件価格
万円
頭金
万円
金利
%
返済額(ボーナス1回分)
万円
返済期間

※ボーナスは自動で年2回分で計算されます。

近隣の物件

  1. ソシオ大手町T-SQUARE ※共用施設充実 ※宅配BOX ※

    広島市中区大手町5丁目

    1K (35.08㎡)

    2,390万円

  2. 13-7

    広島市中区鶴見町

    3LDK (69.97㎡)

    2,980万円

  3. エバーグリーン江波山

    広島市中区江波南2丁目

    1LDK (66.98㎡)

    1,680万円

  4. 藤和平和公園ホームズ

    広島市中区中島町

    2LDK (70.48㎡)

    3,699万円

フローレンス羽衣町パークアヴェニュー

フローレンス羽衣町パークアヴェニュー

3,900万円

6,700円

3LDK(70.65㎡)

お気軽にお問い合わせください

無料お問い合わせ

優良不動産販売 株式会社

082-250-0277

10:00~19:00

(休:木曜日・第1・3・5水曜日)