東区中山上2丁目 3

3,650万円

広島県広島市東区中山上2丁目2-

山陽本線「広島」駅バス18分広島バス「中山上町」停歩3分

広島高速交通アストラムライン「不動院前」駅バス17分広島電鉄「東浄小学校前」停歩7分

芸備線「矢賀」駅徒歩30分

価格
3,650万円
間取り
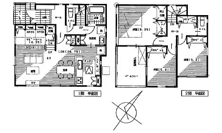
4LDK
土地面積
132.63㎡
所在地
広島県広島市東区中山上2丁目2-
交通

山陽本線広島」駅 バス18分 広島バス「中山上町」 停歩3分

広島高速交通アストラムライン不動院前」駅 バス17分 広島電鉄「東浄小学校前」 停歩7分

芸備線矢賀」駅 徒歩30分

建物面積
100.60㎡
築年月
2025年10月(新築)

物件の特徴

  • バストイレ別

  • TVモニタ付きインターホン

  • カウンターキッチン

  • 独立洗面台

  • 浴室乾燥機

セールスポイント

南向きの広々バルコニー!LDK隣に約4帖のホビールームのあるオール電化住宅◆自由にネット検索できるタブレットをご用意!広島全エリア約8000物件を常時オープン⇒ご自分で条件を入力し納得いくまで探せます

基本情報

販売戸数
3戸
総戸数
3戸
間取り / 詳細
4LDK
サービスルーム1部屋あり(4.25帖)
向き
-
建物面積(坪数)
100.60㎡(30.43坪)
土地面積(坪数)
132.63㎡(40.12坪)
建ぺい率 /
容積率
60%/168%
築年月
2025年10月(新築)
駐車場 /
月額料金
有  駐車場:2台可
土地権利
所有権
土地
(敷金 / 保証金)
- / -
建物構造
木造 / 2階建
傾斜地部分面積
-
路地状敷地
-
私道負担面積
-
セットバック
記載なし
高圧線下面積
-
施工会社
-
用途地域
第一種住居
地目 / 地勢
宅地 / -
接道状況
一方(西 私道 4.2m)
国土法届出要否
不要
都市計画
-
総区画数 /
販売区画数
3区画/3区画
現況
完成済み
その他
法令上の制限
-
取引態様
一般媒介
引渡し
即時
取引条件の
有効期限
2026年02月01日

設備条件

設備条件
  • 閑静な住宅地 / フローリング / 公営水道 / 公共下水 / オール電化 / 照明器具付き / 駐車2台可 / 食器洗い乾燥機 / システムキッチン / カウンターキッチン / バス・トイレ別 / 浴室乾燥機 / 温水洗浄便座 / 洗髪洗面化粧台 / トイレ2ヶ所 / 浴室1坪以上 / 独立洗面台 / 床下収納 / 収納豊富 / TVモニタ付インターホン / 複層ガラス
設備(その他)
    3

その他

物件番号
94440832
管理コード
35804 35805
建築確認番号
第R07認広建セ00074号
情報更新日
2026年01月20日
次回更新予定日
2026年02月01日
取扱会社
  • 優良不動産販売 株式会社
  • 広島県広島市南区皆実町3丁目3-22 
  • TEL:082-250-0277
  • 広島県知事 (2) 第010939号

東区中山上2丁目の他の物件

  1. 3SLDK (81.97㎡)

    2,650万円(106.9万円/坪)

支払いシミュレーション

月々の支払額
9.6
購入希望物件価格
万円
頭金
万円
金利
%
返済額(ボーナス1回分)
万円
返済期間

※ボーナスは自動で年2回分で計算されます。

近隣の物件

  1. 東区戸坂山根2丁目

    広島市東区戸坂山根2丁目

    3LDK (98.53㎡)

    4,380万円

  2. 東区温品3丁目

    広島市東区温品3丁目

    5DK (131.19㎡)

    1,650万円

  3. 東区矢賀6丁目

    広島市東区矢賀6丁目

    3DK (61.26㎡)

    1,290万円

  4. 広島市東区矢賀4丁目

    広島市東区矢賀4丁目

    1SLDK (73.29㎡)

    3,480万円

東区中山上2丁目

東区中山上2丁目

3,650万円

-

4LDK(100.60㎡)

お気軽にお問い合わせください

無料お問い合わせ

優良不動産販売 株式会社

082-250-0277

10:00~19:00

(休:木曜日・第1・3・5水曜日)