2件
-
新築
5,350万円
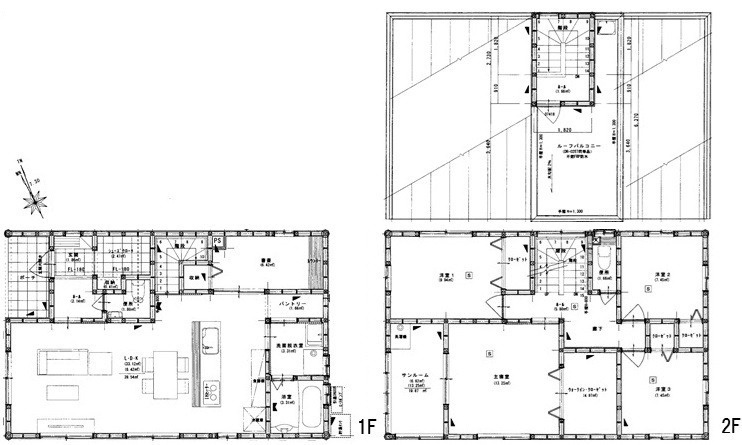
- / 128.75㎡ / 4LDK+S(納戸) /新築 /2階建
- 駐車2台可
- 陽当り良好
- オール電化
- 収納豊富
- ウォークインクロゼット
- ウォークインシューズクロゼット
眺望の良い広々ルーフバルコニー付き☆子供のプールや家庭菜園などくつろぎ空間として活用♪オール電化の省エネ住宅♪人気のアイランドキッチン仕様のLDKは20帖と開放的◆駐車3台可能で一人一台車所有も可能◎
陽当たり良好な角地でゆとりの5LDKです!駐車場3台可(軽自動車)◇リフォーム(キッチン、浴室、壁、床他)原南小学校まで徒歩7分とお子様の通学も安心の距離◎スーパー・ドラッグストア等徒歩圏内です!