74件
-
新築
3,197万円
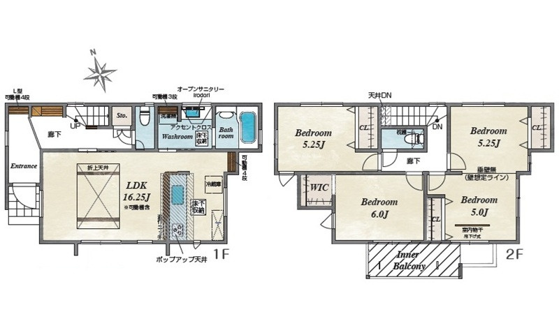
- / 109.92㎡ / 4LDK /新築 /2階建
- 駐車2台可
- 陽当り良好
- オール電化
- バリアフリー
- 収納豊富
- ウォークインシューズクロゼット
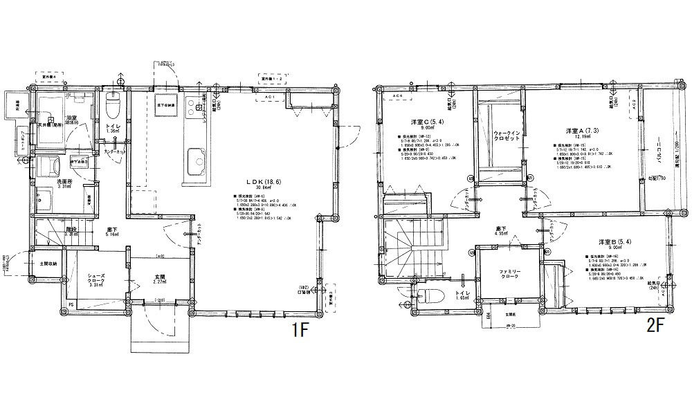
駐車スペース最大4台可能!前面道路幅6m以上で駐車も楽々♪陽当り良好なお洒落なデザイナーズ住宅◎洗濯干しやくつろぎスペースとして活用可能なサンルーム♪ストックをしっかり収納できるパントリー◆公園近く
-
2,898万円
- / 100.06㎡ / 4LDK /築13年 /2階建
- 駐車2台可
- プロパンガス
- 陽当り良好
- リフォーム済
- ウォークインクロゼット
- 食器洗い乾燥機
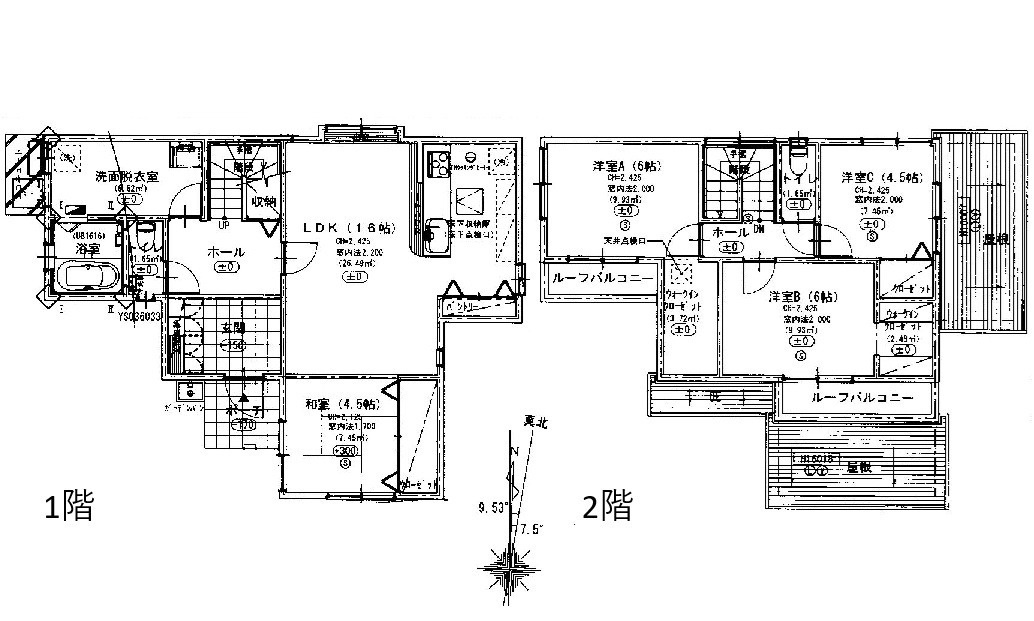
駐車並列2台可能!壁、床リフォーム済みの4LDK!エコキュート交換済み◎アストラムライン安東駅徒歩10分♪南側道路に面した陽当り良好な立地・前面道路5mとゆとりの広さ☆
-
新築
NEW
4,290万円
- / 103.06㎡ / 4LDK /予定 /2階建
- 駐車2台可
- 都市ガス
- 陽当り良好
- システムキッチン
- カウンターキッチン
- フローリング
陽当たり良好で明るいLDK☆収納豊富◎室内干し完備の洗面室で家事もラクラク♪敷地面積は広々約61坪◆宅配BOX完備で留守でも安心!公園も近く子育て世代にもオススメ◎お買物施設が徒歩圏内で利便性も良好◎
-
NEW
2,499万円
- / 104.33㎡ / 4LDK+S(納戸) /築15年 /2階建
- 駐車2台可
- プロパンガス
- カウンターキッチン
- 浴室1坪以上
- トイレ2ヶ所
- 公共下水
AL長楽寺駅徒歩9分☆明るい陽が射し込む18帖のLDK◎リビング階段は家族の行動が共有出来てコミュニケーションにも有効ですね!収納豊富な間取りで3帖の納戸は季節家電等の収納に便利です!縦列駐車2台可◆
-
2,980万円
- / 155.49㎡ / 4LDK+S(納戸) /築30年 /2階建
- 駐車2台可
- プロパンガス
- 陽当り良好
- 二世帯住宅
- バルコニー
- 独立洗面台
二世帯住宅可能なダイニングキッチン・トイレ。浴室洗面所2箇所設置有◎玄関横には広い倉庫有り!現状駐車2台可能ですが倉庫撤去で駐車3台可能◎教育施設が徒歩圏内に充実☆お子様やお孫さんのいるご家庭にピッタリの立地!
-
新築
3,549万円
- / 106.26㎡ / 3LDK /新築 /2階建
- 駐車2台可
- プロパンガス
- 陽当り良好
- 収納豊富
- ウォークインクロゼット
- システムキッチン
開放感のある明るいLDK☆収納豊富な間取りです!並列駐車2台可能◇広島県内を中心に約8,000件を自由に検索できる!カフェコーナー登場!賃貸にするか購入するかまだきめてない…そんな方も大歓迎!
-
新築
2,390万円
- / 82.08㎡ / 3LDK /新築 /2階建
- 陽当り良好
- オール電化
- 収納豊富
- ウォークインクロゼット
- システムキッチン
- カウンターキッチン
断熱・省エネ基準を満たしたZEH水準の住宅◎オール電化で光熱費節約!高台の角地で眺望・陽当り良好◎食洗機・浴室暖房乾燥機など嬉しい設備が充実☆全室WIC完備の収納豊富な間取りで室内スッキリ◆駐車可能
-
新築
3,780万円
- / 89.42㎡ / 3LDK /新築 /2階建
- プロパンガス
- 建設住宅性能評価書付
- ウォークインクロゼット
- システムキッチン
- カウンターキッチン
- 浴室乾燥機
商品券最大15万円分をプレゼント!
【優良不動産販売でのご成約の特典♪】
※物件により、手数料の10%相当額
◆古市小学校・安佐南中学校
◆駐車1台可
◆LED照明(玄関・廊下・キッチンなど)
◆WIC、全室収納等収納が豊富です!
◆リビング階段☆
◆◇◇◆◇◇◆
【疑問や不安ゼロ】あなたに寄り添った、物件探しを始めましょう!
◎自由にネット検索できるタブレットをご用意!
広島全エリア約6000物件を常時オープン公開◎
⇒ご自分で条件を入力し、納得いくまで探せます。
◆新着・計画中物件など…
豊富な物件情報は『関連リンク』へ
優良不動産販売
広島市南区皆実町3丁目3-22 -
3,780万円
- / 117.51㎡ / 2LDK /築22年 /2階建
- 都市ガス
- 陽当り良好
- リフォーム済
- ウォークインクロゼット
- システムキッチン
- カウンターキッチン
リフォーム【内装・外装・お庭】前面道路6mで駐車ラクラク☆リビング上吹抜け
-
新築
3,980万円
- / 114.26㎡ / 3LDK+S(納戸) /新築 /3階建
- 駐車2台可
- 陽当り良好
- オール電化
- 収納豊富
- システムキッチン
- カウンターキッチン
全居室6帖以上☆エコキュート搭載で光熱費節約♩オール電化住宅です◎食器洗乾燥機&パントリー付きの対面式キッチン☆全居室南西向き・2面採光で開放的な明るい住まい♪駐車2台可〇EV車用充電器あり◎AL中筋駅まで徒歩13分です!
-
ペット可
2,890万円
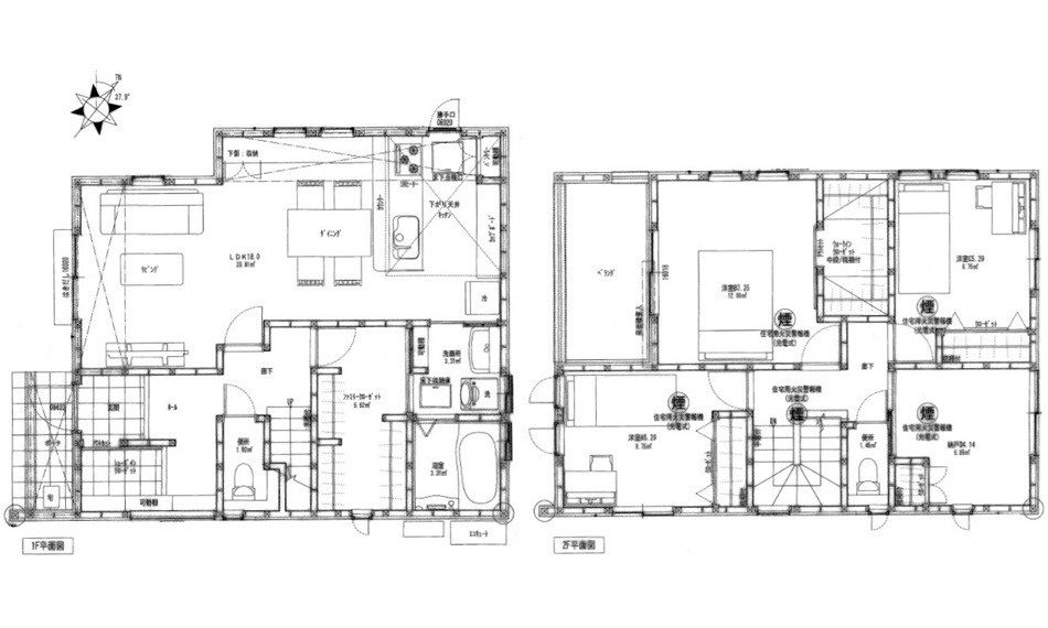
- / 125.86㎡ / 7DK /築42年 /2階建
- プロパンガス
- 陽当り良好
- 収納豊富
- 浴室1坪以上
- バス・トイレ別
- フローリング
70坪超の角地!南西向きで陽当た良好前面道路6m以上・間口10m以上!四季を感じる公園目の前の見通しの良い立地◆駐車スペース有り◆広島県内を中心に約8,000件を自由に検索できる!カフェコーナー登場!賃貸にするか購入するかまだきめてない…そんな方も大歓迎!
-
新築
3,498万円
- / 107.72㎡ / 4LDK /新築 /3階建
- 駐車2台可
- 都市ガス
- 陽当り良好
- 収納豊富
- ウォークインクロゼット
- システムキッチン
2階サンルーム有!部屋干しや書斎として利用可◎防犯対策に1階スリット窓仕様◎エコジョーズ採用!省エネでエコな生活!◆二方道路の角地で陽当り良好♪駐車2台可能☆小学校まで徒歩7分♪お子様の通学も安心
-
新築
4,476万円
- / 115.09㎡ / 4LDK /新築 /3階建
- 駐車2台可
- 収納豊富
- ウォークインクロゼット
- ウォークインシューズクロゼット
- システムキッチン
- カウンターキッチン
AL中筋駅徒歩7分!徒歩圏内にスーパー充実!小学校徒歩3分!利便性良好♪ランドリールームやサンルームなど多目的に活用できるスペースが豊富◆大切な人の住まいを探すように…同じ想いでお手伝いいたします♪
-
新築
5,282万円
- / 115.10㎡ / 4LDK /新築 /2階建
- 駐車2台可
- 収納豊富
- ウォークインクロゼット
- ウォークインシューズクロゼット
- システムキッチン
- カウンターキッチン
AL中筋駅徒歩7分!徒歩圏内にスーパー充実!小学校徒歩3分!利便性良好♪ランドリールームやサンルームなど多目的に活用できるスペースが豊富◆大切な人の住まいを探すように…同じ想いでお手伝いいたします♪
-
新築
3,198万円
- / 103.86㎡ / 4LDK /新築 /3階建
- 駐車2台可
- 都市ガス
- 陽当り良好
- 収納豊富
- システムキッチン
- 浴室1坪以上
室内干しやアイロンがけなどに便利な家事導線を考慮したランドリースペース有◎省エネ給湯器エコジョーズ採用で財布に優しいエコ物件♪2階リビングは眺望もよく開放的◎外からの視線もシャットアウト◆駐車2台可能
-
新築
3,680万円
- / 118.40㎡ / 4LDK /新築 /2階建
- 駐車2台可
- 陽当り良好
- オール電化
- 収納豊富
- ウォークインクロゼット
- システムキッチン
18帖の広々LDK☆ZEH水準の省エネ住宅◎エコキュート採用のオール電化◆雨の日も安心のサンルームあり!3帖のWIC・SIC等収納が充実の間取り◎駐車2台可(車種による)◆閑静な住宅街です!
-
2,580万円
- / 101.85㎡ / 4LDK /築3年 /2階建
- オール電化
- 公共下水
三方角地の開放感のある角地です!陽当り・風通しともに良好な季節を感じる緑豊かな住宅地◎オール電化◇室内リフォーム済☆駐車4台可◆広島市内でマイホームの購入をお考えなら、お気軽にお問い合わせください!
-
新築
4,590万円
- / 102.67㎡ / 3LDK /予定 /2階建
- 駐車2台可
- 都市ガス
- ウォークインクロゼット
- システムキッチン
- 食器洗い乾燥機
- 浴室乾燥機
広いリビングでゆっくりくつろげます♪家事を助ける嬉しい設備や収納が充実☆広島県内を中心に約8,000件を自由に検索できる!カフェコーナー登場!賃貸にするか購入するかまだきめてない…そんな方も大歓迎!
-
新築
4,790万円
- / 109.30㎡ / 3LDK /予定 /2階建
- 駐車2台可
- 都市ガス
- ウォークインクロゼット
- システムキッチン
- 食器洗い乾燥機
- 浴室乾燥機
広いリビングでゆっくりくつろげます♪家事を助ける嬉しい設備や収納が充実☆広島県内を中心に約8,000件を自由に検索できる!カフェコーナー登場!賃貸にするか購入するかまだきめてない…そんな方も大歓迎!
-
新築
5,770万円
- / 92.74㎡ / 3LDK /新築 /2階建
- 駐車2台可
- プロパンガス
- 陽当り良好
- バリアフリー
- 収納豊富
- ウォークインクロゼット
無垢の柔らかさを感じられるナチュラルテイストのお洒落な住まい☆彡南側吹き抜けの壁には洗練された檜の縦格子!陽当たり良好◎太陽光付き◇利便性を考えた家事動線◎健康面に配慮したTGオリジナル内装採用◇
-
1,380万円
- / 67.15㎡ / 3LDK /築50年 /2階建
- プロパンガス
- 陽当り良好
- リフォーム済
- バス・トイレ別
- フローリング
- 独立洗面台
リフォーム物件☆お庭付きで家庭菜園も楽しめます♪緑豊かな住宅地で目の前には広い公園があり子育て環境良好◎駐車スペース有り
-
新築
3,880万円
- / 96.05㎡ / 4LDK /新築 /2階建
- 駐車2台可
- 都市ガス
- 陽当り良好
- 収納豊富
- システムキッチン
- カウンターキッチン
衣類乾燥機「幹太くん」設置済!雨の日も洗濯フカフカ◎省エネ性能レベルZEH水準の家!南向きリビングは二面採光で明るい陽射しの入る空間◎収納付きキッチン・全室洋室&クローゼット付◆駐車2台可能
-
新築
3,980万円
- / 98.75㎡ / 3LDK+S(納戸) /新築 /2階建
- 駐車2台可
- 都市ガス
- 陽当り良好
- 収納豊富
- システムキッチン
- カウンターキッチン
衣類乾燥機「幹太くん」設置済!雨の日も洗濯フカフカ◎省エネ性能レベルZEH水準の家!南向きリビングは二面採光で明るい陽射しの入る空間◎お子様の遊び場としても活用できるホビースペース付!駐車2台可能
-
新築
3,890万円
- / 88.70㎡ / 3LDK /予定 /2階建
- 駐車2台可
- 陽当り良好
- オール電化
- 収納豊富
- ウォークインクロゼット
- システムキッチン
ZEH水準の省エネ住宅!オール電化で光熱費節約☆多目的に使えるサンルーム有♪パントリーやWICなど収納スペース充実◆広島市内でマイホームの購入をお考えなら、お気軽にお問い合わせください(*^_^*)
-
新築
3,799万円
- / 105.44㎡ / 3LDK /新築 /2階建
- 駐車2台可
- プロパンガス
- 陽当り良好
- 収納豊富
- ウォークインクロゼット
- ウォークインシューズクロゼット
開放感のある明るいLDK☆収納豊富な間取りです!並列駐車2台可能◇広島県内を中心に約8,000件を自由に検索できる!カフェコーナー登場!賃貸にするか購入するかまだきめてない…そんな方も大歓迎!
-
新築
3,899万円
- / 105.32㎡ / 4LDK /新築 /2階建
- 駐車2台可
- プロパンガス
- 陽当り良好
- 収納豊富
- ウォークインクロゼット
- ウォークインシューズクロゼット
開放感のある明るいLDK☆収納豊富な間取りです!並列駐車2台可能◇広島県内を中心に約8,000件を自由に検索できる!カフェコーナー登場!賃貸にするか購入するかまだきめてない…そんな方も大歓迎!
-
新築
5,650万円
- / 83.01㎡ / 3LDK /新築 /2階建
- 駐車2台可
- プロパンガス
- 陽当り良好
- バリアフリー
- 収納豊富
- ウォークインクロゼット
重厚感あるデザイン住宅!建具は全てハイドア・2階のLDK入口は檜のハイドア仕様◎広々WIC・パントリー等州も充実☆彡利便性を考えた動線◇健康目苑に配慮したTGオリジナル内装材使用◆駐車2台可能
-
新築
2,780万円
- / 104.90㎡ / 3LDK /新築 /2階建
- 駐車2台可
- 陽当り良好
- オール電化
- 収納豊富
- ウォークインクロゼット
- ウォークインシューズクロゼット
環境とお財布に優しいオール電化物件です☆普通車3台駐車可能☆角地◎
-
新築
4,498万円
- / 106.21㎡ / 3LDK /新築 /2階建
- 駐車2台可
- オール電化
- ウォークインクロゼット
- システムキッチン
- 温水洗浄便座
- 複層ガラス
広島ICまで車で5分☆徒歩圏内に生活利便移設が充実した立地!オール電化☆広島県内を中心に約8,000件を自由に検索できる!カフェコーナー登場!賃貸にするか購入するかまだきめてない…そんな方も大歓迎!
リフォーム(キッチン、浴室、洗面、トイレ、壁、床、建具、、外壁、屋根、白蟻点検ほか)住友林業施工の4LDK☆7.2帖(2階)・3帖(1階)の納戸、食品庫等収納豊富な間取りです!並列駐車2台可◆